PIA Q
Exhaust Only Island Hood
Features at a Glance
- ETL Listed for use over 400°F, 600°F and 700°F cooking surface temperatures, providing flexibility in designing kitchen ventilation systems. ETL Listed to Canadian safety standards, ETL Sanitation Listed and built in accordance with NFPA 96.
- Sturdy stainless steel construction with double-wall, insulated front panel.
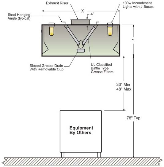
- Front design prohibits condensation and directs grease-laden vapors toward the exhaust filter bank. Polished stainless steel on the interior and exterior of the front enhance aesthetics.
- Factory pre-wired lighting to illuminate cooking surface.
- Stainless steel filters with optional high velocity cartridge filters (Model PIA-C Q)
- Optional integral 3" air space to meet NFPA 96 requirements when the hood is against a limited combustible wall. Optional insulated 3" air space for combustible walls.
- Optional UL Listed light and fan control switches flush mounted and pre-wired through built-in electrical chaseway.
- Optional ETL Listed exhaust fire damper (Model PIA).
Options
- Utility Cabinet - ETL Listed for integral side mount on the K-Tech ventilation hood, fabricated of same material as hood. The cabinet can house a factory pre-piped UL Listed fire suppression system* and ETL Listed, pre-wired electrical controls with light switches, lighted fan control switches and internal factory wiring and components (starters, relays, etc.) to reduce field wiring requirements, or the ETL Listed Energy Management System with ETL electrical controls. ETL tests confirm temperatures do not exceed 120°F inside the cabinet during fire condition. (120°F is the maximum allowed storage temperature for the UL Listed fire suppression system and the ETL Listed Industrial control panel. (*Dimensional restrictions may apply)
- Removable ETL Listed High-Velocity Cartridge Filter - Constructed of stainless steel. Uses centrifugal force to remove grease and other particulates. National Institute of Standards and Technology methodology used by an independent agency to evaluate performance. Tests indicated 95 percent extraction efficiency.
- Captrate® Filter - Removable Combo Filter witch combines stainless steel baffle with a unique high tech patented ceramic filter. Provides highest level of grease removal. Meets UL 1046 and NFPA No. 96 requirements.
- Enclosure Panels - Constructed of stainless steel. Mounting channel factory-welded to hood for field installation of panels over 11" high. If under 11", factory-welded and integrally installed into hood front and ends. Sized to extend from hood top to ceiling, enclosing pipe and hanging parts.
- End Panels - Should be used to maximize hood performance and eliminate the effects of cross drafts in the kitchen. Units constructed of stainless steel and sized according to hood width and cooking equipment. Exposed edges hemmed for safety and rigidity.
- Exhaust Fire Damper - ETL Listed. Installed in exhaust collar. Activated by a UL Listed, 286°F, 40 lb. rated fusible link.
- Heated Make-Up Air - ETL Listed direct fired gas heated make-up air unit manufactured by K-Tech. ETL Listed for natural gas and propane. Design integrates the blower and burner into a single package. Heavy duty, weather resistant, galvanized steel construction. Units available in Roof Top Package or as a stand alone heated make-up air module. Several models available to meet almost any performance rating specification.
Performance Data
| Model | Configuration | Avg. Cooking Surface Temp. (°F) | Min Exhaust CFM/ft. |
| PIA Q, PIA-C Q |
Island Hood | 400°F - Ovens, Steamers, Kettles, Open-Burner Ranges, Griddles, Fryers | 346 |
| PIA Q, PIA-C Q |
Island Hood | 600°F - Gas Charbroilers, Electric Charbroilers, Woks | 422 |
| PIA Q, PIA-C Q |
Island Hood | 700°F - Mesquite Grills, Charcoal Charbroilers, Gas Conveyor Charbroilers | 475 |
| Recommended Duct Sizing: Exhaust based on 1500 FPM. Supply based on 800. | |||
Construction
- One piece V-Bank island hood.
- Fabricated of Type 430 stainless steel, #3 or #4 polish, on all exposed surfaces. Optional type 304 stainless steel available.
- Double-wall, insulated front increases rigidity.
- Front design prohibits condensation and directs grease-laden vapors toward the exhaust filter bank. Polished stainless steel on the interior and exterior of the front enhance aesthetics.
- Fitted with UL Classified, stainless steel filters, removable for cleaning. Optional high velocity cartridge filters available. (Model PIA-C Q)
- Sloped grease drain system with removable 1/2 pint cup for easy cleaning.
- Pre-punched hanging angles on each end of hood. Additional set provided for hoods longer than 12'.
- Fitted with UL Listed, pre-wired, incandescent light fixtures and plastic-coated glass globes to hold up to a standard 100 watt bulb. Recessed incandescent and recessed fluorescent lights optional.
- A built-in wiring chase provided for optimal positioning of electrical controls and outlets on the front face of the hood without penetrating capture area or requiring external chaseway.
- Optional integral 3" air space to meet NFPA 96 requirements when the hood is against a limited combustible wall. Optional insulated 3" air space for combustible walls.
- Optional ETL Listed exhaust fire damper (Model PIA).
- Model PIA Q is ETL Listed for 400°F, 600°F and 700°F cooking surfaces (File 3054804-001 without exhaust damper; File 3054804-002 with exhaust damper), ETL Sanitation Listed and built in accordance with NFPA Standard 96.
Sectional View
Certifications
The PIA Q Model has been certified by ITS. This certification mark indicates that the product has been tested to and has met the minimum requirements of a widely recognized (consensus) U.S. and Canadian products safety standard, that the manufacturing site has been audited, and that the applicant has agreed to a program of periodic factory follow-up inspections to verify continued performance.
Models PIA Q are ETL Listed under file number 3054804-001 and complies with UL710 Standards and ULC710 Standards.
